EN
首页 > 新闻动态 > 测试百科

电快速瞬变脉冲群测试时的10cm木垫对测试有什么影响

在IEC根据61000-4-4的标准,在进行电快速瞬变脉冲群测试时,被测产品应放置在5000-4-4的标准中*50cm,高10cm在木垫上,顾客经常问,这个木垫有什么作用,如果没有这个木垫,对实验结果有什么影响?如果没有这个木垫,你能做实验吗?

 

国产电磁兼容仪器设备

 图1.电快速瞬变脉冲群测试环境


首先,我们可以肯定地说,没有这个木垫,我们可以做实验。这个木垫的作用只是统一测试条件,方便失效后的再现。EUT架在10cm非导体物质上后,EUT地面及其附属线材的复杂电容基本确定,不会改变。

也可以理解:统一测试布局,防止其他实验室测试出现不同的测试结果,规定在这么高的平台上,可以提高一致性。异常或比较和分析。

台式设备、通常安装在天花板或墙壁上的设备和嵌入式设备应放置在接地参考平面上方(01)+01)m处试验。大型台式设备或多系统的试验可按落地式进行,与台式设备的试验布置应保持相同的距离。试验发生器和耦合/去耦网络应与参考接地平面重叠。接地参考平面厚度不小于0.25mm金属板(铜或铝);也可以使用其他金属材料,但其厚度至少为0.65mm。接地参考平面的最小尺寸为0.8mx1m。实际尺寸取决于受试设备的尺寸。接地参考平面各侧至少应超过01m由于安全原因,接地参考平面应与保护接地连接。

 

国产电磁兼容仪器设备

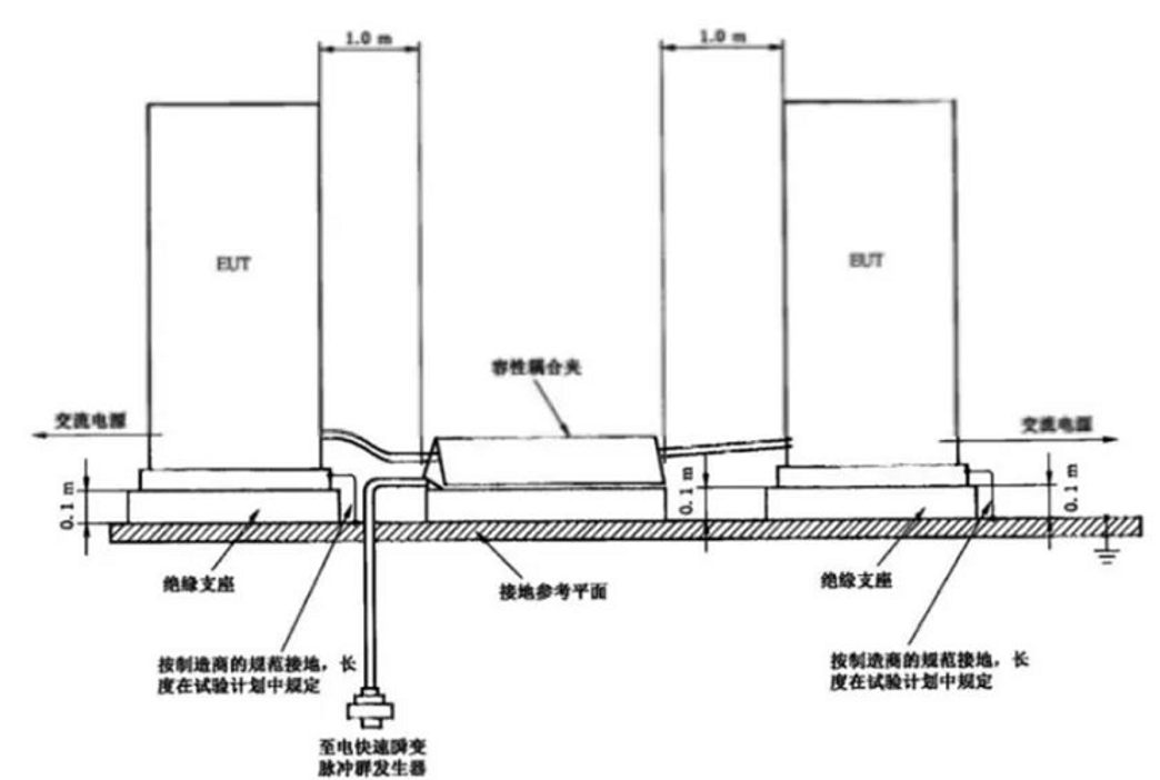
图2. 由两件受试设备组成的落地式系统的试验布置示例


对于不提供电缆的设备,应根据操作/安装指导最坏情况进行试验。

注:试验电缆的长度通常由产品委员会决定


受试设备应按设备安装规范进行布置和连接,以满足其功能要求。除接地参考平面外,受试设备与所有其他导电结构(包括发生器、辅助设备和屏蔽室墙壁)之间的最小距离应大于0.5m。有与受试设备相连的电缆应放置在接地参考平面上方0.1m绝缘支撑。不受电快速瞬变脉冲群的电缆布线应尽量远离受试电缆,以最大限度地减少电缆之间的耦合。

Copyright © 深圳市AGGAME仪器有限公司 备案号:粤ICP备48123086号 百度统计 站点地图
技术支持:神州通达网络
首页
电话
留言
AGGAME
网站地图